◆JR「摩耶」駅徒歩3分の立地
◆北東の角地
◆即日対応有
-
6,580万円
129.05 m2
63.32 m2
2025年1月
-
神戸市灘区灘南通6丁目
JR東海道本線(米原〜神戸) 「摩耶」駅 徒歩3分阪神本線 「西灘」駅 徒歩4分阪急神戸線 「王子公園」駅 徒歩10分
- 物件担当者コメント
- ◆お客様ごとのシームレスな物件提案
お客様ごとに専用サイトを設けて、オンラインで物件提案
ログイン不要でアクセスするだけでどこでも物件を検討、比較できます
「見やすくて楽になった」
「施設やハザードマップも同時に見れて検討しやすい」
と好評いただいております。
未掲載物件でもサイトに複数反映させて条件に合う物件にて内覧ご検討いただけます。
| 所在地 | 神戸市灘区灘南通6丁目 MAP | ||
|---|---|---|---|
| 交通 | JR東海道本線(米原〜神戸) 「摩耶」駅 徒歩3分
阪神本線 「西灘」駅 徒歩4分
阪急神戸線 「王子公園」駅 徒歩10分 |
||
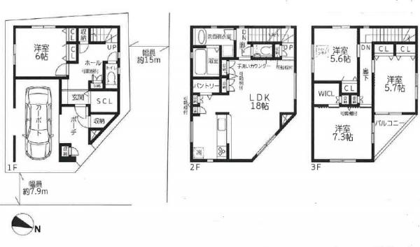
| 価格 | 6,580万円 | 間取り | 4LDK |
| 建物面積 | 129.05m2(39.03坪) | ||
| 土地面積 | 63.32m2(19.15坪) | ||
| ほか私道面積 | 私道負担無 | 建物構造 | 木造 |
| 建築年月 | 2025年1月 | 建築確認番号 | |
| 土地権利 | 所有権 | 地目 | 宅地 |
| 接道状況 | 北側 15m 角地 公道 位置指定:無、東側 7.9m 角地 公道 位置指定:無 | 駐車場 | 有 |
| セットバック | 不要 | 国土法届出 | 不要 |
| 都市計画 | 市街化 | 建ぺい率/容積率 | 60% / 200% |
| 用途地域 | 第1種住居地域 |
||
| 設備 | 都市ガス / 公営水道 / 汚水:公共下水 / 雑排水:公共下水 市街地が近い / 前道6m以上 / 角地 / 平坦地 / 2沿線以上利用可 / 駅まで平坦 / 3階建以上 / 陽当り良好 / 通風良好 / LDK18畳以上 / 全居室6畳以上 / 全居室フローリング / 床暖房 / 全居室収納 / ウォークインクローゼット / シューズインクローク / システムキッチン / 対面式キッチン / 食器洗乾燥機 / キッチン床暖房 / 浴室乾燥機 / ミストサウナ / 浴室に窓 / 浴室暖房 / シャワー付洗面化粧台 / トイレ2ヶ所 / 温水洗浄便座 / バルコニー / ハイルーフ駐車場 / TVモニタ付インターホン / 即入居可 |
||
| 備考 |
◆JR・阪神電鉄の2線2駅利用可能
◆ウオークイン・シューズインクローク等収納たっぷりのお家 水道筋商店街 826m(徒歩11分)
ブルメールHAT神戸 1534m(徒歩20分)
スーパーマルハチ 王子公園店 529m(徒歩7分)
グルメシティ 摩耶海岸通店 1196m(徒歩15分)
神戸市立原田中学校 575m(徒歩8分)
神戸市立西灘小学校 485m(徒歩7分)
ローソン 岩屋中町二丁目店 627m(徒歩8分)
ファミリーマート 神戸城内通店 720m(徒歩9分)
セブン-イレブン 阪急王子公園駅前店 830m(徒歩11分)
コーナン灘大石川店 963m(徒歩13分)
めばえの園認定こども園 234m(徒歩3分)
花音つばさこども園 555m(徒歩7分)
ランバス記念幼稚園 471m(徒歩6分)
金沢病院 1201m(徒歩16分)
神鋼記念病院 1268m(徒歩16分)
神戸水道筋郵便局 427m(徒歩6分)
神戸市 灘区役所 1685m(徒歩22分)
日新信用金庫 西灘支店 657m(徒歩9分)
西灘保育所 263m(徒歩4分)
神戸灘南郵便局 246m(徒歩4分) |
||
| 現況 | 空家 | 引渡 | 即時 |
| 取引態様 | 媒介 | 物件番号 | 713585673 |
| 情報変更日 | 2025年11月10日 | 次回変更予定日 | 2025年11月21日 |
周辺の一戸建て物件の検索はコチラ
物件情報について
- 地積、建物床面積、仕様に変更が生じる場合があります。
- 図面と現況が異なる場合には現況を優先します。
- 物件情報は最新のものをご提供させて頂きますが、万一売約済の場合はご容赦ください。
- 建築条件付土地は土地売買契約締結後、一定期間内に売主指定の不動産会社もしくは建築業者と建築請負契約を結ぶことが前提となります。
期間中に建築請負契約が成立しなかった場合、土地売買契約は白紙となり、支払った金額は全額返金されます。




























































