-
2億4,800万円
196.30 m2
138.02 m2
2014年2月
-
東京都目黒区柿の木坂2丁目
東急東横線 「学芸大学」駅 徒歩14分東急東横線 「都立大学」駅 徒歩14分
- 物件担当者コメント
| 所在地 | 東京都目黒区柿の木坂2丁目 MAP | ||
|---|---|---|---|
| 交通 | 東急東横線 「学芸大学」駅 徒歩14分
東急東横線 「都立大学」駅 徒歩14分 |
||
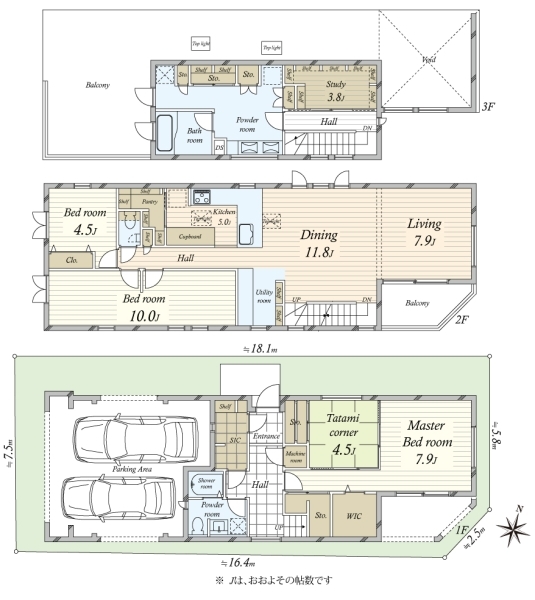
| 価格 | 2億4,800万円 | 間取り | 3SLDK |
| 建物面積 | 196.30m2(59.38坪) | ||
| 土地面積 | 138.02m2(41.75坪) | ||
| ほか私道面積 | 建物構造 | 木造 | |
| 建築年月 | 2014年2月 | 建築確認番号 | |
| 土地権利 | 所有権 | 地目 | 宅地 |
| 接道状況 | 西側 5.4m 一方 公道 位置指定:無 接面:7.5m | 駐車場 | 有 |
| セットバック | 国土法届出 | 不要 | |
| 都市計画 | 市街化 | 建ぺい率/容積率 | 60% / 150% |
| 用途地域 | 第1種低層住居専用地域 |
||
| 設備 | |||
| 備考 |
建物面積に車庫面積32.12m2含/都市計画法他制限:準防火地域、第1種高度地区
設備:都市ガス、公営水道、本下水
|
||
| 現況 | 居住中 | 引渡 | 相談 |
| 取引態様 | 一般 | 物件番号 | 713507082 |
| 情報変更日 | 2025年11月14日 | 次回変更予定日 | 2025年11月21日 |
周辺の一戸建て物件の検索はコチラ
物件情報について
- 地積、建物床面積、仕様に変更が生じる場合があります。
- 図面と現況が異なる場合には現況を優先します。
- 物件情報は最新のものをご提供させて頂きますが、万一売約済の場合はご容赦ください。
- 建築条件付土地は土地売買契約締結後、一定期間内に売主指定の不動産会社もしくは建築業者と建築請負契約を結ぶことが前提となります。
期間中に建築請負契約が成立しなかった場合、土地売買契約は白紙となり、支払った金額は全額返金されます。










